中文 |

大尺度悬挑!!一座在具有设计前瞻性,全新超现代化、复合型总部办公园区

更新时间:2024-07-16

DUTS杜兹设计于2019年接受道生天合材料科技的委托,为其打造位于上海临港的总部办公园区,经过为期三年的建筑,室内,景观一体化打造与建设,园区已于近期(2022年)竣工投入使用。


全新的道生天合上海临港总部包含人性化办公空间,全新的现代化工厂,配备世界先进设备的研发中心和先进生产线,DUTS杜兹设计也创新性的在工业建筑与办公空间中融入了更多文化体验,创造出具有“博物馆体验”的复合型总部办公园区。


DUTS Design was commissioned by Techstorm in 2019 to build a headquarter industrial park in Lingang, Shanghai. DUTS team provides design total solution with planning architecture, interiors and landscape for Techstorm. Three years later, the headquarters industrial park has completed construction and put into use in 2022. The brand-new Techstorm Headquarter Park includes humanized office space, a brand-new modern factory, a R&D center equipped with world-class equipment and advanced production lines. DUTS team also innovatively integrates more public cultural space experiences into industrial buildings and offices, creating the complex headquarters office park with a "museum experience".


图片

▲园区鸟瞰 © 吴清山

图片

图片

▲项目区位分析 & 总平图 © DUTS Design


超现代化复合型总部办公园区


“企业的办公环境和建筑特点要像企业的logo和VI一样,能够充分展现他独一无二的形象和个性,成为企业的名片,成为企业文化不可分割的一部分。”


道生天合材料科技(上海)股份有限公司,是一家致力于研究与开发高性能热固性树脂材料的研发、生产和销售的高新技术企业,在环氧树脂、聚氨酯、丙烯酸和有机硅等产品方面,拥有一支超过20年成熟经验的技术团队,涉及领域涵盖:[风能产业]、[复合材料]、[汽车工业]、[光伏]、[电力]等产业。


图片

▲建筑形态体块推演 © DUTS Design

图片

▲建筑外观 © 吴清山

图片

▲园区入口,悬挑的建筑造型如同海上的战舰 © 吴清山


道生天合全新总部园区位于上海自由贸易试验区临港新片区,东接洋山国际枢纽港,北临浦东国际航空港,地处上海沿海大通道的重要节点,区位优势明显。


项目占地面积32613平方米, 建筑总面积25802平方米。DUTS杜兹设计希望为道生天合打造的不仅是一个工业园区,而是一座节能环保、可持续生产的绿色家园,一座将智能化办公、数字化生产、先进实验室完美结合的智慧园区,一座在具有设计前瞻性,功能迭代性的现代化复合型总部园区。


World-class ultra-modern complex headquarter park“The office environment and architectural style of a company are as important as its logo and VI.They can fully display the corporate image and personality, while becoming an inseparable part of corporate culture. ”Techstorm, headquartered in Shanghai, is specialized in manufacturing and development of advanced chemical products related to: Wind Energy, Composite, Automotive, Electricity, Photovoltaic.Techstorm has over 20 years of experience with manufacturing and developing Epoxy, Polyurethanes, Silicone and Acrylic products. Techstorm new headquarter park is located in Lingang New Area of Shanghai Free Trade Pilot Zone, with Yangshan International Hub Port in the east and Pudong International Airport in the north.It is located at an important node of Shanghai's coastal channel, with obvious location advantages. The project covers an area of 32,613 square meters, with a total construction area of 25,802 square meters. DUTS design hopes to create not only an industrial park, but also a green home with energy saving, environmental protection and sustainable production, a smart industrial park combines intelligent office, digital production and advanced laboratories, a modern compound headquarter park with cutting-edge design and iterative functions.


图片

▲大尺度悬挑的工业感与具有人文体验的“灰空间”通过建筑造型有机结合 © 吴清山

图片

▲入口处浮于水面的丁字形步道 © 吴清山


结构功能化的建筑设计,在工业建筑中加入文化体验


整个园区统一布局与规划,集合总部办公、研发中心、生产中心、休闲与展示等多种功能,人性化的办公环境和功能布局,能够充分满足企业和员工的使用需求,部分区域具有重新规划和功能迭代的潜力,能够根据企业未来的发展状况做出相应的调整。


图片

▲在工业建筑中加入更多公共文化建筑的体验© 吴清山

图片

▲营造出“灰空间”般的放松与舒适感 © 吴清山

图片

▲夜景 © 吴清山


“我们希望能在工业建筑与办公空间中加入更多公共文化空间的体验。道生天合是一家非常有社会责任感与人文关怀的企业,他们希望为员工创造一种开放,生态,利于交流与创新的办公氛围,因此我们在工业园区融入了公共文化建筑中“灰空间”的设计手法,并通过将结构功能化,给工业建筑注入了一种“博物馆式的体验”。杜兹设计创始人,建筑师钟凌这样提到。


With functional structure, DUTS added cultural experience to industrial buildingsThe layout and planning of the entire headquarter park integrates various functions such as production, office, R&D, leisure, and display. The user-friendly office environment and functional layout can fully meet the needs of enterprises and employees. Some areas have the potential for re-planning and functional iteration, which can be adjusted according to the future development of the enterprise. "We hope to add more experience of public cultural space to industrial buildings and office spaces. Daosheng Tianhe is a very socially responsible and humanistic enterprise, and they hope to create an open and ecological environment for employees, which is conducive to communication and innovation. Therefore, we integrated the design technique of "gray space" in public cultural buildings in the industrial park, and injected a "museum-like experience" into the industrial building by functionalizing the structure.”Mentioned by Ling Zhong, founder and chief architect of DUTS design.


图片

▲结构功能化的设计将建筑形态与室内功能结合 © DUTS Design

图片

▲办公总部大楼室内功能分区 © DUTS Design

图片

▲总部前台空间 © 吴清山


面积达2000平米的镜面水池在40米的超尺度悬挑建筑下徐徐展开,设计师在入口处去繁就简,只保留了一条浮于水面的丁字形步道。水平如镜,天光自中央入口区上方投下,将客人引至中央入口,为身处其中的人们营造出如公共文化“灰空间”般的放松与舒适感。水的柔性衬托出建筑的力量与魅力。


结合空中花园的布局,为员工的交流与互动带来更多的流通性和便利性,创造一个空间与环境共融的现代工业园区。


The mirror pool with an area of 2,000 square meters is slowly unfolded under the 40-meter super-scale cantilevered building, and only a T-shaped walkway is left floating on the water surface. The level is like a mirror, and sunlight is cast from above the central entrance area, leading guests to the central entrance, bringing more relaxation and comfort of the "gray space”of the cultural space to the people in it. The flexibility of water brings out the strength and charm of the building. Combined with the layout of the internal garden of the building, DUTS designe expects to bring more convenience to the communication and interaction of employees, and to create a modern industrial park with harmonious integration of architecture and environment.


图片

图片

▲开放的共享办公区域,通过错层空间形成不同高度上的“盒子”空间,可满足不同人数的会议及接待需求 © 吴清山

图片

图片

▲开放,生态,利于交流与创新的办公氛围 © 吴清山


建筑、室内、景观一体化的设计策略,创造独特的空间体验


随着工业化向数字化的发展,更多的新型工厂也不再仅仅是单一的生产场所,而是结合当代设计美学与现代生活的复合型业态,企业的总部办公楼既能顺应日益变化的新工作方式,也是展示业主的形象、产品与服务的平台,是员工工作、生活和社交的空间,传达着企业的价值观和责任感。


图片

▲“在自然中工作” © 吴清山


DUTS杜兹设计在园区的打造上采用了建筑与室内一体化的设计策略,让建筑亮点与室内功能有效结合,利用建筑造型创造出独特的空间体验。


利用悬挑的建筑造型在室内形成自然的落差,设计师为道生天合的总部打造出错落有致的开放式办公空间与阶梯状的大型报告厅,结合有序排布的室内布局,创造出更加开放、多元、复合与共享的总部办公体验。


DUTS provided design total solutions integrating architecture, interior and landscape to create a unique space experienceWith the development of industrialization to digitization, more new factories are no longer just single production sites, but complex multi-format sites that integrate contemporary design aesthetics and modern lifestyle. The corporate headquarter office building can adapt to the constant changes. It is also a platform to display the owner's image, products and services. It is a space for employees to work, live and socialize, conveying the company's values and sense of responsibility. DUTS Design adopts the design strategy of integrating architecture and interior of the headquarter park, so as to effectively combine the architecture features together with interior layout, creating a unique space experience. DUTS design used the height difference formed by the cantilevered architectural shape in the interior to create large scale of shared space while a staircase lecture hall for Techstorm office. Combined with the orderly arrangement of the interior layout, a more open, diverse, complex and shared headquarter office experience is created for staff.


图片

▲园区1号楼(总部办公大楼)花园鸟瞰 © 吴清山

图片

▲四时风景成为空间中的最美好的点缀 © 吴清山


利用建筑自然引入的光线,给员工带来生态化,花园式的办公氛围。室内装饰材料整体选用了工业感的灰色,与整体大气的空间氛围形成呼应,也符合道生天合“从复杂的自然规律中提炼出简洁稳定的解决方案”的企业理念。


在一层与二层的连接空间,设计师通过质朴的木色创造出温暖而明亮的空间氛围,让空间呈现出自然的高级感,也为员工营造具有人文感的办公体验。


Using the light naturally introduced by the building, DUTS design hopes to bring an ecological and garden-like office atmosphere to the employees. The main interior decoration is gray with an industrial sense, which echoes the simple space atmosphere, and is also in line with Techstorm's corporate philosophy of "Extracting simple and stable solutions from complex natural laws". In the connecting space between the first floor and the second floor, DUTS design creates a warm space atmosphere with rustic wood color, presenting a natural sense with quality and a humanistic work experience for employees.


图片

▲花园 © 吴清山


设计师希望为员工创造一种“在自然中工作”的感觉。两层全通透的内庭玻璃幕墙使360º的花园景观成为可能,中庭花园通过交叉通风和自然采光营造出一个舒适的小气候。办公空间的设计语言是现代简洁的,生机勃勃的中庭景观成为最浓重的色彩。


不论是从一层步入花园,小憩停留去感受自然,或是从二层向下俯瞰,一座随季节更替、勃勃生机的花园正渗透入建筑的各个空间,让使用者既能欣赏风景,本身亦成为“景中人”。


图片

▲颇具工业感的空间与温暖的木色形成对话与呼应 © 吴清山


通过建筑形态在建筑内部创造的花园,带来了更多人与自然之间的互动可能。设计师在室内空间中通过大幅镜面形成天然的取景窗,引入自然光线与四时变化。


空间内的另一侧,用质朴的木色做包裹与铺展,与自然景观形成呼应与对话。整体的空间设计没有采用复杂的装饰,而回归了自然的质朴,也与业主绿色环保的企业愿景相符。


DUTS design wanted to create a feeling of "working in nature" for employees. The 360º garden view is made possible by the two-story fully transparent inner courtyard glass curtain wall, which creates a comfortable microclimate through cross ventilation and natural lighting. The design language of the office space is modern and concise, and the vibrant atrium landscape becomes the strongest highlight. Whether when you are stepping into the garden from the first floor to take a rest and feel the nature, or overlooking from the second floor, a garden that changes with the seasons and is full of vitality penetrates into different spaces of the building, allowing users to enjoy the landscape while also become parts of it. The garden inside the building created based on the architectural form brings more possibilities for interaction between people and nature. Designers use large mirrors to form natural viewfinders in the interior space to bring in natural light and the changes of the seasons. The other side of the space is wrapped and spread with rustic wood color, forming an echo and dialogue with the natural landscape. The overall space design does not use complicated decoration, but returns to the simplicity as nature, which is also in line with the owner's corporate vision of environmental protection and sustainable development.


图片

▲利用空间形态创造出一体化下沉式的会客空间 © 吴清山


精细化工程管理,把握项目中的点滴细节


DUTS杜兹设计也为业主提供了精细化的工程管理服务,确保项目推进过程中的点滴细节。我们相信,一个好作品是在需求方和设计方的共同孕育中完成的。建筑的体验来源于一个整体,从结构骨骼到空间表皮,从理性需求的满足到感性细节的触发,需要把控到结构、空间、布局、材料、灯光每一个细节,来呈现一个内在基因与用户连接沟通的作品。


全新的道生天合超现代化企业总部园区,创新的建筑形态及空间布局,工业融合文化的丰富体验,世界一流的研发实验室,可持续发展的高效环保型生产线,将会是国内乃至全球高科技材料行业中一道亮丽的风景线。


Sophisticated project management to ensure detail management in the projectDUTS design also provided the owner with fine engineering management services to ensure detailed management during the project advancement process. We believe that a good work is completed in the joint breeding of the owner and the designer. The experience of architecture comes from a whole, from structural skeleton to spatial details, from the satisfaction of rational needs to the triggering of perceptual atmosphere, it is necessary to control every detail from structure, space, layout, materials to lighting, in order to achieve a connection with users. The brand new Techstorm headquarters park integrates innovative architectural forms and spatial layouts, creating a rich experience of industrial integration with public culture, world-class R&D laboratories combined with sustainable and efficient environmentally friendly production lines, we believe it It will become a beautiful landscape in the domestic and even global high-tech materials industry.


图片

▲园区已于2022年竣工投入使用 © 吴清山


项目图纸

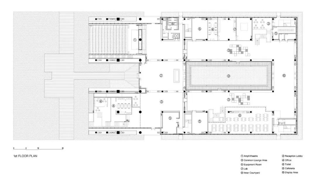
图片

▲一号楼1层平面 ©DUTS Design

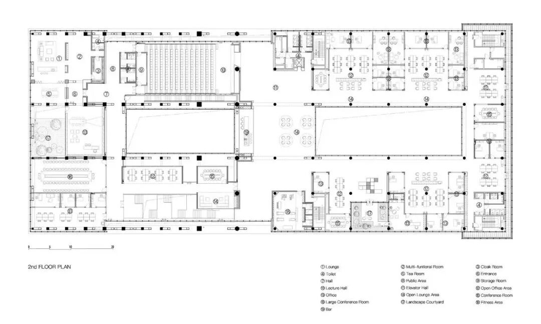
图片

▲一号楼2层平面 © DUTS Design

图片

▲1号楼立面 © DUTS Design

图片

▲2号楼南北立面 © DUTS Design

图片

▲3号楼南北立面 © DUTS Design

图片

▲1号楼剖面 © DUTS Design

图片

▲2号楼剖面 © DUTS Design

图片

▲3号楼剖面 © DUTS Design

图片

▲2号楼东西立面 © DUTS Design

图片

▲3号楼东西立面 © DUTS Design


http://www.officeenjoy.com