中文 |

山形水影的总部办公园区 - 上海嘉定宝龙中心 / UDG 有关工作室

更新时间:2024-07-16

12个单体以相似的简洁体量构成错落有致的群落关系,立面以铝板和玻璃的虚实变化形成渐变韵律感,犹如从山顶留下的涓涓细流,塑造“山形水影”的意向。

感谢 UDG 有关工作室 对gooood的分享


项目位于上海嘉定新城中心区的总部园区,距离远香湖和地铁站皆在1.5公里以内。项目由四块独立用地组成,定位为具有独特人文魅力、持续创新力和区域影响力的知名企业总部聚集区及商务街区,助力嘉定新城聚集人气,城市空间提质升级,促进产城融合发展。

图片
▲如群山的建筑群 © 合什影像

图片
▲高低不一的建筑组合 © 合什影像



01

一条绿轴、两条街道

项目根据用地特点及对城市设计的回应,提出了“中央绿轴、活力双街”的总体布局概念:中央绿轴作为稀缺的生态资源,承载了办公人群和周边居民的日常休闲活动,公园化的景观成为活力中心,强调休闲特质;南北两翼的活力双街由不同类型、不同高度的建筑围合而成,各楼栋的主要出入口在此界面上设置,是商务人群汇聚的枢纽轴,强调商务特质。三轴的特性为“商务-休闲-商务”的关系,并行不悖,并通过垂直方向相互渗透,强化了地块之间联系,整体布局在井然有序中不失变化,真正达到了人、街、园的融合。

图片
▲山形水影 © 有关工作室

图片
▲设计草图 © 有关工作室

图片
▲一条绿轴和两条商街 © 有关工作室

图片
▲夕阳下的园区 © 合什影像

图片
▲遥望远香湖 © 合什影像

图片
▲中央绿轴 © 合什影像

图片
▲峡谷一般的商务轴 © 合什影像

图片
▲峡谷一般的商务轴 © 合什影像

图片
▲层叠的建筑图景 © 合什影像



02

总部社区中的多样化复合

项目提出“总部社区”的概念,通过组团化的布局,形成多层次的开放空间和分散化的楼栋布局。总体共 12个独立的办公单元,形成4个尺度各异的组团。办公单元遵循多样性的原则,以独栋、双拼、小高层的组合满足各种规模的企业需要。单体平面柱网规则,交通核偏心设置,形成完整开敞的大空间,可根据入驻企业的规模灵活划分使用。

图片
▲类型分布图 © 有关工作室

图片
▲东西向的四个截面 © 有关工作室

图片
▲南北向的三个截面 © 有关工作室

图片
▲鸟瞰视野 © 合什影像

图片
▲建筑与绿轴 © 合什影像

图片
▲绿轴旁的办公群落 © 合什影像

图片
▲外部街区形象 © 合什影像

除了办公空间外,项目还混合了多样的商业空间和灰空间,为城市勾勒出丰富的公共生活。商业与景观紧密结合,以骑楼形式沿中央公共绿轴展开,并在地下一层形成环形的步行商业街区,入口下沉广场可导入人群。此外,各处的露台、门廊、广场、庭院也定义空间多样性,为园区提供多样的体验和价值提升。

图片

图片
▲剖透视 © 有关工作室

图片
▲园区内部街道 © 合什影像

图片
▲园区内部街道 © 合什影像



03

丰富群落与纯粹单体

建筑群落所构成的天际线似山脉连绵起伏,在此基础上,建筑单体更强调纯粹性,注重使用效率的极致化。12个单体以相似的简洁体量构成错落有致的群落关系,立面以铝板和玻璃的虚实变化形成渐变韵律感,犹如从山顶留下的涓涓细流,塑造“山形水影”的意向。根据每栋楼的立面比例的不同,“水流”的长短和位置也不尽相同,最终形成一幅连续展开的抽象山水画卷。幕墙的虚实之间以“非明确”的状态来定义,营造动态模糊感,呈现出通透且不定的整体形象。

图片
▲表皮设计思路 © 有关工作室

图片
▲单体类型 © 有关工作室

图片
▲高层办公 © 合什影像

图片
▲立面的“水流” © 合什影像

图片
▲多层办公 © 合什影像

图片
▲起伏的天际线 © 合什影像

图片
▲多层办公 © 合什影像

图片
▲地下商业入口 © 合什影像

图片
▲办公大堂 © 合什影像

在快速且规模化的城市建造中,我们希望综合办公园区不单单只有高大的体量和冷峻的幕墙,也能为午后商务精英的咖啡时光、傍晚情侣的悠闲脚步、周末孩童的奔跑嬉戏提供良好的场所,能为城市带来不同的生活表情,激发更具公共关怀的城市理念。

图片
▲夕阳下的园区 © 合什影像


上海嘉定宝龙中心 / UDG 有关工作室 单选
5分
2票12.50%
4分
5票31.25%
3分
2票12.50%
2分
2票12.50%
1分
5票31.25%
投票已过期


项目图纸


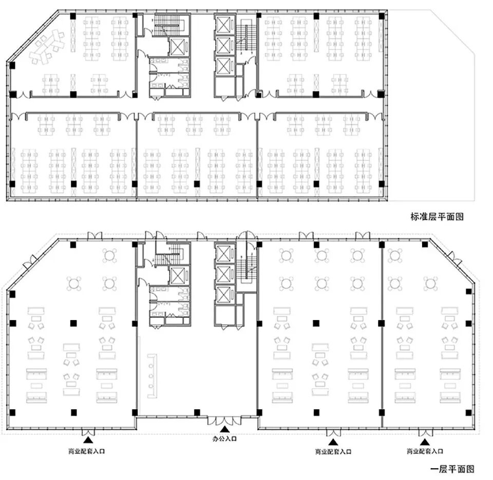
图片
▲一层平面图 © 上海矶森

图片
▲高层办公平面 © 有关工作室

图片
▲带骑楼的多层办公平面 © 有关工作室

图片
▲多层办公平面 © 有关工作室

图片
▲墙身大样 © 有关工作室


项目名称:上海嘉定宝龙中心

项目类型:办公园区

设计时间:2018年

完成设计:2023年

基地面积:34100㎡

总建筑面积:158600㎡

容积率:3.

项目业主:宝龙集团

方案设计:联创设计 有关工作室

施工图设计:联创设计 都市综合院、结构一部、机电二部、工业化建筑研究中心

设计主创:陈伟鹏

设计顾问:钱强、Alain Robert

建筑团队:付惠、贺康、曾玉明、李思言、康琦、刘小娣、瞿立恒、刘佳、朴秀月、祝丹晴、商浩、程子华、孙佳格格

结构团队:张以萱、李俊、周金松、路倬、郭小敏

暖通团队:贾敬芝、陈翠梧、汤国芳、陈盈斐、赵壮、洪文静

给排水团队:张晓莹、陈宁、赵强强、陈秀兰、尹艳

电气团队:李刚、金嘉、陈志远、王玮

景观设计:上海矶森建筑设计有限公司

装配式设计:联创设计 工业化建筑研究中心 王炳洪

建筑摄影:合什影像